Welke carport? Deze carport. Weet je, degene die ons er bijna van weerhield dit huis te overwegen omdat we zo anti-carport waren? Hoe we ons deuntje hebben veranderd nadat we er een paar jaar mee hadden doorgebracht...
Sherry noemde hierin eigenlijk het nieuwe deuntje dat we signeren McListerson-brieven na: we wilden dit oorspronkelijk ombouwen tot een garage, maar nu neigen we naar het toevoegen van een traliewerkboog, zodat het allemaal weelderig en mooi is als een carport met een pergola in plaats van gesloten en donker als een garage (we zouden wat licht verliezen van twee ramen naar de wasruimte en het kantoor als we deze zouden sluiten).
De verloren ramen waren een grote gamechanger, omdat we erachter kwamen dat de brandvoorschriften vereisten dat we ze moesten sluiten. Zie je deze man boven ons ingebouwde bureau? Het zou weg zijn, samen met het raam in de wasruimte.
We hebben ook onze behoefte aan garageopslag overwonnen omdat onze kelder en zolder zijn ruim voldoende gebleken. Operatie Garage Conversie is dus officieel Operatie Carport Fancification geworden. Onze belangrijkste tactiek? Het toevoegen van de architecturale interesse die Sherry hierboven beschreef. Kortom, neem het van zoiets als dit...
Hoe de bel-deurbel te bedraden
…naar zoiets als dit. Gewoon reëler, minder Photoshop-taculair. En misschien met wat mooi groen er overheen.
modderkamer opslag
Als die Photoshop-klus het niet voor jou doet (het doet het nauwelijks voor mij), dan eerste afbeelding in dit artikel macht. Pas toen we op zoek gingen naar inspiratie, besefte ik dat aangebouwde pergola's iets zijn. Sommige chique mensen noemen ze zelfs garage-priëlen. Dus het idee van een carport-prieel (een carbor?) leek niet zo vergezocht. Maar toen ik erachter kwam hoe ik er daadwerkelijk een kon bouwen, dacht ik allemaal...
Vervolgens leidde Google ons naar Workbench Magazine. Nou ja, specifiek dit artikel uit 2008 op – je raadt het al – het bouwen van een aangebouwde garagepergola.
werken robotstofzuigers?
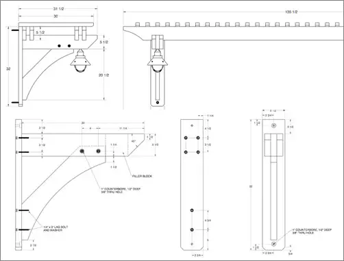
En het was niet zomaar een artikel. Het was een artikel met bouwplannen en diagrammen. Glorieuze, glorieuze diagrammen.
En alsof de hemel van de pergola's op ons neer scheen, was hun plan precies zo groot als wat we moesten doen, zodat we hun materiaal en kniplijst bijna tot op de maat van T. Hallelujah konden volgen. Dus ik printte de plannen uit en maakte een afspraak met de huurwagen van Lowe.
Nadat we de plannen hadden gevonden en al onze materialen hadden gekocht en teruggehaald, konden we dit weekend eindelijk beginnen met bouwen, en de eerste stap was het plaatsen van een extra kolom aan de huiszijde van de carport (omdat we een plek nodig hadden om de pergolabeugel aan die kant te bevestigen).
We zijn momenteel bezig met het omleggen van de regenpijp, het gronden en verven van veel hout, het maken van onze eigen gebogen houten beugels en het doorzagen van alle latten voor het bovenste gedeelte. Dus als alles goed gaat, zouden we dat begin volgende week moeten hebben uitgeschakeld, dus dan komen we terug met een bericht vol details voor jullie. De plannen omvatten behoorlijk ingewikkelde knip- en verstevigingswerkzaamheden (althans naar mijn maatstaven), dus we zullen moeten zien hoe dat allemaal gaat. Wens ons geluk!
nachtkastje, diy nachtkastje
Mensen vragen ons hoe we de moed krijgen om grote bouwprojecten als deze vaak aan te pakken, en ons antwoord is altijd om ze op te delen in kleinere delen, zodat je hersenen niet ontploffen. Om dat aan te tonen, is hier onze eigen uitgesplitste pergola-takenlijst:
- onze eigen plannen vinden of maken
- uitzoeken welke stukken hout/schroeven/bouten we precies nodig hebben en hoe we ze op de een of andere manier thuis kunnen krijgen<–we rented a Lowe’s truck for to get the 16' boards home
- primer en verf het hout vooraf (zou veel gemakkelijker moeten zijn om dit te doen voordat de dingen worden gemonteerd)<– this is about half done, hence the half cross out
- bouw een kolom aan de linkerkant van de carport zodat de beugel aan die kant erop kan rusten
- bouw de gebogen houten beugels en schroef ze stevig vast
- leg de planken en latten over de bovenkant en zorg ervoor dat ze allemaal waterpas en veilig zijn
- zoek een wijnstok om het ding omhoog te kruipen voor extra krediet
Heeft iemand anders ooit een pergola gebouwd? Wie vindt dat HGTV Pimp My Carport aan hun programmering moet toevoegen? Alleen ik?
Psst- Ik schreef dit voor Boston.













